$565,000
 $3,033 est/mo Sourced by Back At You

20107 Park Strip St #a & B,Lago Vista, TX 78645

Lago Vista, TX 78645

Share:

Description

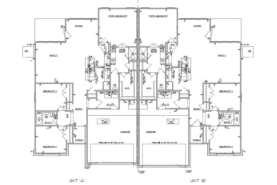
Introducing a prime investment opportunity in the growing community of Lago Vista, TX. This recently built duplex spans 3,022 square feet, showcasing contemporary design and efficient living. Each unit is 1,511 square feet, featuring 3 bedrooms and 2 bathrooms, offering a sleek and functional layout. The open-concept design seamlessly integrates the living, dining, and kitchen spaces, enhanced by recessed lighting and wood vinyl flooring. The kitchens are well-appointed with a cooktop, electric oven, dishwasher, microwave, and refrigerator, all complemented by a convenient pantry. Central air conditioning and heating ensure comfort year-round, with in-unit washer/dryer hookups within the in-unit laundry room. Set on a generous lot, each unit has a private fenced yard, ideal for outdoor relaxation. The single-story design prioritizes accessibility and ease of maintenance, appealing to both residents and investors alike. Currently tenant-occupied, this property offers immediate income potential. It is pet-friendly, with certain conditions, and includes both a garage and driveway for ample parking. Discover the perfect blend of modern living and investment potential in Lago Vista's thriving community. Schedule a showing today to explore this exceptional opportunity and enjoy the desirable lake lifestyle!

Details

MLS #9301608
Listing TypeFor Sale
HOA Dues$240
Sub-TypeResale
StatusActive
Year2024
Days On Site239
Listing Provided ByCompass RE Texas, LLC | Vanessa Sinclair

Features

SQ Feet3,022
Garage2
Story(s)1
Acreage0.28
Water FrontYes
Property ViewNone

Interior

Interior FeaturesCeiling Fan(s), Granite Counters, Double Vanity, Eat-in Kitchen, High Speed Internet, Kitchen Island, No Interior Steps, Open Floorplan, Pantry, Primary Bedroom on Main, Recessed Lighting, Walk-In Closet(s)
CoolingCentral Air
HeatingCentral
AppliancesMicrowave, Free-Standing Electric Oven, Free-Standing Refrigerator
Fireplace FeaturesNone
Fireplaces Total0
Window FeaturesBlinds, Double Pane Windows
FlooringCarpet, Vinyl

Exterior

Exterior FeaturesPrivate Yard
RoofComposition
Foundation DetailsSlab
Lot FeaturesBack Yard, Few Trees, Landscaped, Level, Public Maintained Road, Trees-Small (Under 20 Ft)
Patio And Porch FeaturesPatio
FencingBack Yard, Fenced, Full, Gate, Wood
Construction MaterialsHardi Plank Type, Masonry – Partial
Security FeaturesCarbon Monoxide Detector(s), Firewall(s), Smoke Detector(s)

Parking

Parking FeaturesAttached, Concrete, Driveway, Garage, Garage Faces Front
Garage Spaces2

Utilities

UtilitiesElectricity Connected, Natural Gas Not Available, Sewer Connected, Water Connected
SewerPublic Sewer

Other

List AorAustin Board Of Realtors

Taxes

Property12500

Area Information

StateTX
CountyTravis
CityLago Vista
Zip Code78645
AreaLN
Community NameLago Vista Civic Center Add
School DistrictLago Vista ISD
Elementary SchoolLago Vista
High SchoolLago Vista
Sourced by Back At You

Request a showing

Request a showing

Loading Form

 Listings courtesy of Austin Board of REALTORS® MLS as distributed by MLS GRID.

Based on information submitted to the MLS GRID as of November 6, 2025 at 10:07:00 PM PST All data is obtained from various sources and may not have been verified by broker or MLS GRID. Supplied Open House Information is subject to change without notice. All information should be independently reviewed and verified for accuracy. Properties may or may not be listed by the office/agent presenting the information.

The Digital Millennium Copyright Act of 1998, 17 U.S.C. § 512 (the “DMCA”) provides recourse for copyright owners who believe that material appearing on the Internet infringes their rights under U.S. copyright law. If you believe in good faith that any content or material made available in connection with our website or services infringes your copyright, you (or your agent) may send us a notice requesting that the content or material be removed, or access to it blocked. Notices must be sent in writing by email to DMCAnotice@MLSGrid.com.

“The DMCA requires that your notice of alleged copyright infringement include the following information: (1) description of the copyrighted work that is the subject of claimed infringement; (2) description of the alleged infringing content and information sufficient to permit us to locate the content; (3) contact information for you, including your address, telephone number and email address; (4) a statement by you that you have a good faith belief that the content in the manner complained of is not authorized by the copyright owner, or its agent, or by the operation of any law; (5) a statement by you, signed under penalty of perjury, that the information in the notification is accurate and that you have the authority to enforce the copyrights that are claimed to be infringed; and (6) a physical or electronic signature of the copyright owner or a person authorized to act on the copyright owner’s behalf. Failure to include all of the above information may result in the delay of the processing of your complaint.

Contact

Learn More About This Property

StateTX
CountyTravis
CityLago Vista
Zip Code78645
AreaLN
Community NameLago Vista Civic Center Add
School DistrictLago Vista ISD
Elementary SchoolLago Vista
High SchoolLago Vista
Sourced by Back At You
Nearby Listings (Within 1/2 mile)
Price: $423K - $706K
sqft: 2,000 - 3,500
Nearby Listings Property ImageNearby Listings Details
20502 Bonanza St Property Photo 1
$599,000
20502 Bonanza St
Lago Vista, TX 78645
6004 Cimmaron Trl Property Photo 1
$499,999
6004 Cimmaron Trl
Lago Vista, TX 78645
Listing Updated: October 24, 2025 at 4:37:30 PM PDT